Površina 91,05 m2
Stan B20
Stan B20 nalazi se na etaži 3 te Vas do njega vodi moderan lift, a predstavlja spoj suvremenog dizajna, vrhunske opremljenosti i idealne lokacije u samom centru grada. Svaki detalj pažljivo je osmišljen kako bi vam pružio maksimalnu udobnost, sigurnost i funkcionalnost.
Stan je opremljen troslojnim PVC prozorima u antracit boji, električnim roletama, klimatizacijom u svakoj sobi te podnim grijanjem u kupaonici. Podovi su obloženi visokokvalitetnim parketom i keramikom, a ulazna blindo vrata osiguravaju dodatnu zaštitu.
Zahvaljujući izvrsnoj termo i zvučnoj izolaciji, kao i zasebnom ventilacijskom sustavu, stan jamči mir i privatnost, bez miješanja mirisa ili buke iz susjednih jedinica, a zidovi su obrađeni gips-kartonskim oblogama.
Ispod su prikazani primjeri mogućeg uređenja stana te ne prikazuju finalno izvedeno stanje.
Po želji i dogovoru je uz nadoplatu moguće ugovaranje sistema ključ u ruke kako bi stan bio završen i uređen u skladu sa slikama ispod.
-
-
Sobnost Trosoban
-
Tip prostoraStan
-
Status Prodano
Moderan interijer
Zidovi obrađeni gips-kartonskim oblogama za čist i suvremen izgled
Kvalitetna stolarija
PVC prozori u antracit boji s troslojnim staklima i električnim roletama
Potpuna udobnost
Klima uređaj u svakoj sobi i podno grijanje u kupaonici
Prvoklasne površine
Parket i keramika visoke kvalitete u svim prostorijama
Sigurnost i mir
Blindo vrata, termo i zvučna izolacija za maksimalnu privatnost
Dostupnost liftom
Do stana vodi moderan lift spojen s garažnim etažama
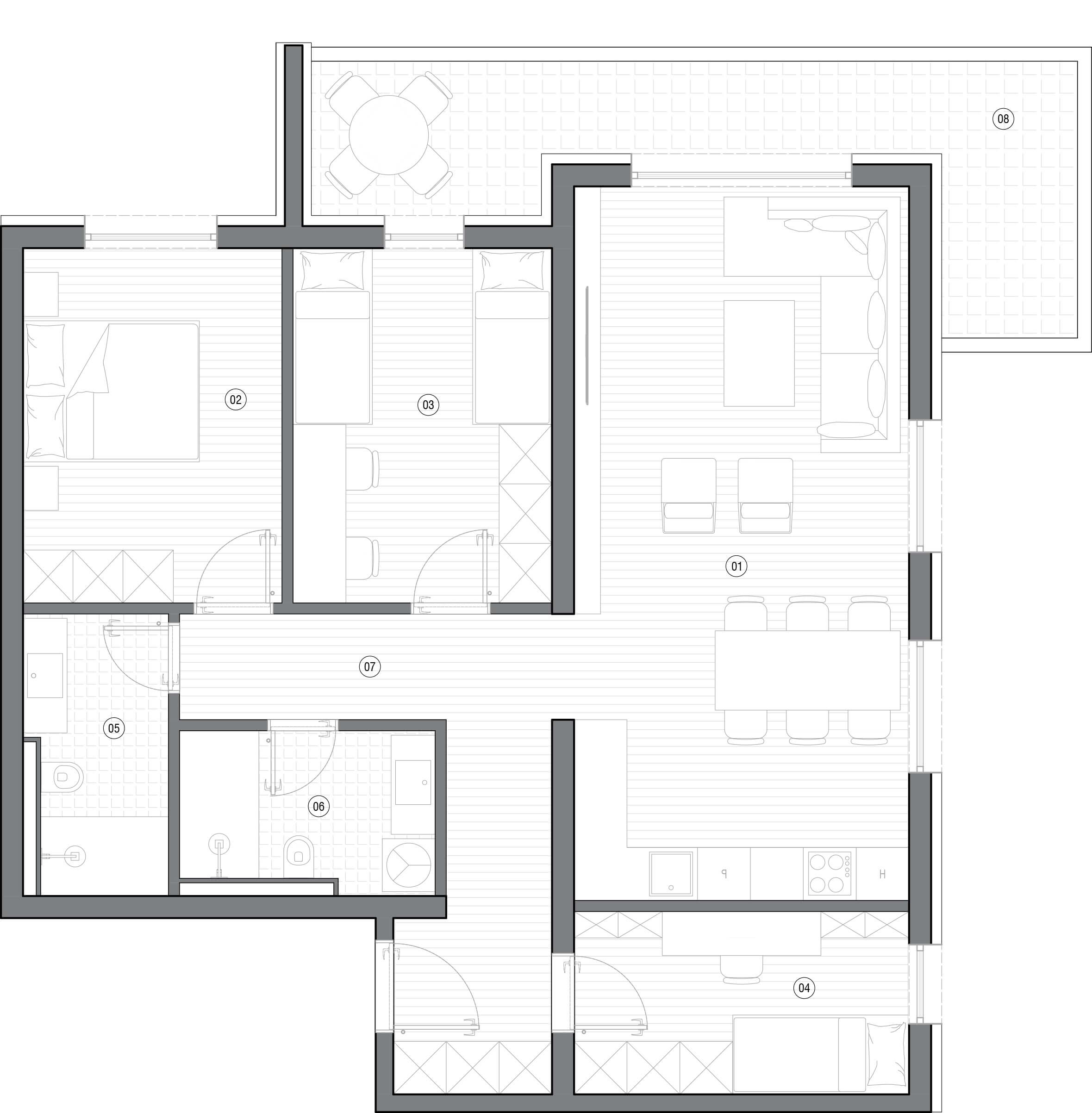
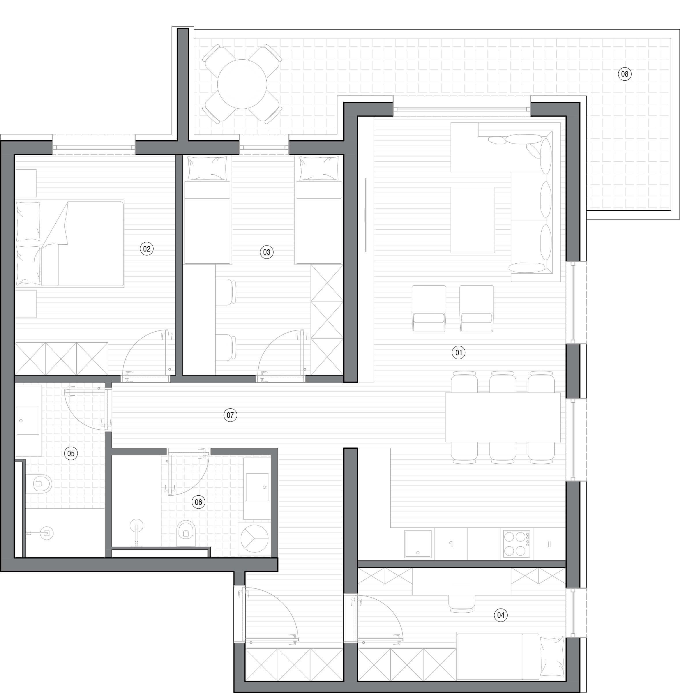
Tlocrt stana
| Broj prostorije | Naziv prostorije | Površina (m2) | Koeficijent obračuna | Prodajna površina (m2) | |
|---|---|---|---|---|---|
| 1 | D. boravak, blagovaonica i kuhinja | 30,78 | 1,00 | 30,78 | |
| 2 | Soba 1 | 11,82 | 1,00 | 11,82 | |
| 3 | Soba 2 | 11,82 | 1,00 | 11,82 | |
| 4 | Soba 3 | 7,88 | 1,00 | 7,88 | |
| 5 | Kupaonica 1 | 5,07 | 1,00 | 5,07 | |
| 6 | Kupaonica 2 | 4,92 | 1,00 | 4,92 | |
| 7 | Hodnik | 11,67 | 1,00 | 11,67 | |
| 8 | Balkon | 14,17 | 0,50 | 7,09 | |
| Ukupno | 98,13 | 91,05 |
D. boravak, blagovaonica i kuhinja
Broj prostorije:
1
Površina (m2):
30,78
Koeficijent obračuna:
1,00
Prodajna površina (m2):
30,78
Soba 1
Broj prostorije:
2
Površina (m2):
11,82
Koeficijent obračuna:
1,00
Prodajna površina (m2):
11,82
Soba 2
Broj prostorije:
3
Površina (m2):
11,82
Koeficijent obračuna:
1,00
Prodajna površina (m2):
11,82
Soba 3
Broj prostorije:
4
Površina (m2):
7,88
Koeficijent obračuna:
1,00
Prodajna površina (m2):
7,88
Kupaonica 1
Broj prostorije:
5
Površina (m2):
5,07
Koeficijent obračuna:
1,00
Prodajna površina (m2):
5,07
Kupaonica 2
Broj prostorije:
6
Površina (m2):
4,92
Koeficijent obračuna:
1,00
Prodajna površina (m2):
4,92
Hodnik
Broj prostorije:
7
Površina (m2):
11,67
Koeficijent obračuna:
1,00
Prodajna površina (m2):
11,67
Balkon
Broj prostorije:
8
Površina (m2):
14,17
Koeficijent obračuna:
0,50
Prodajna površina (m2):
7,09
Ukupno
Površina (m2):
98,13
Prodajna površina (m2):
91,05



